LoCo Architectes

Architecte

Montpellier

Architecture

Neuf
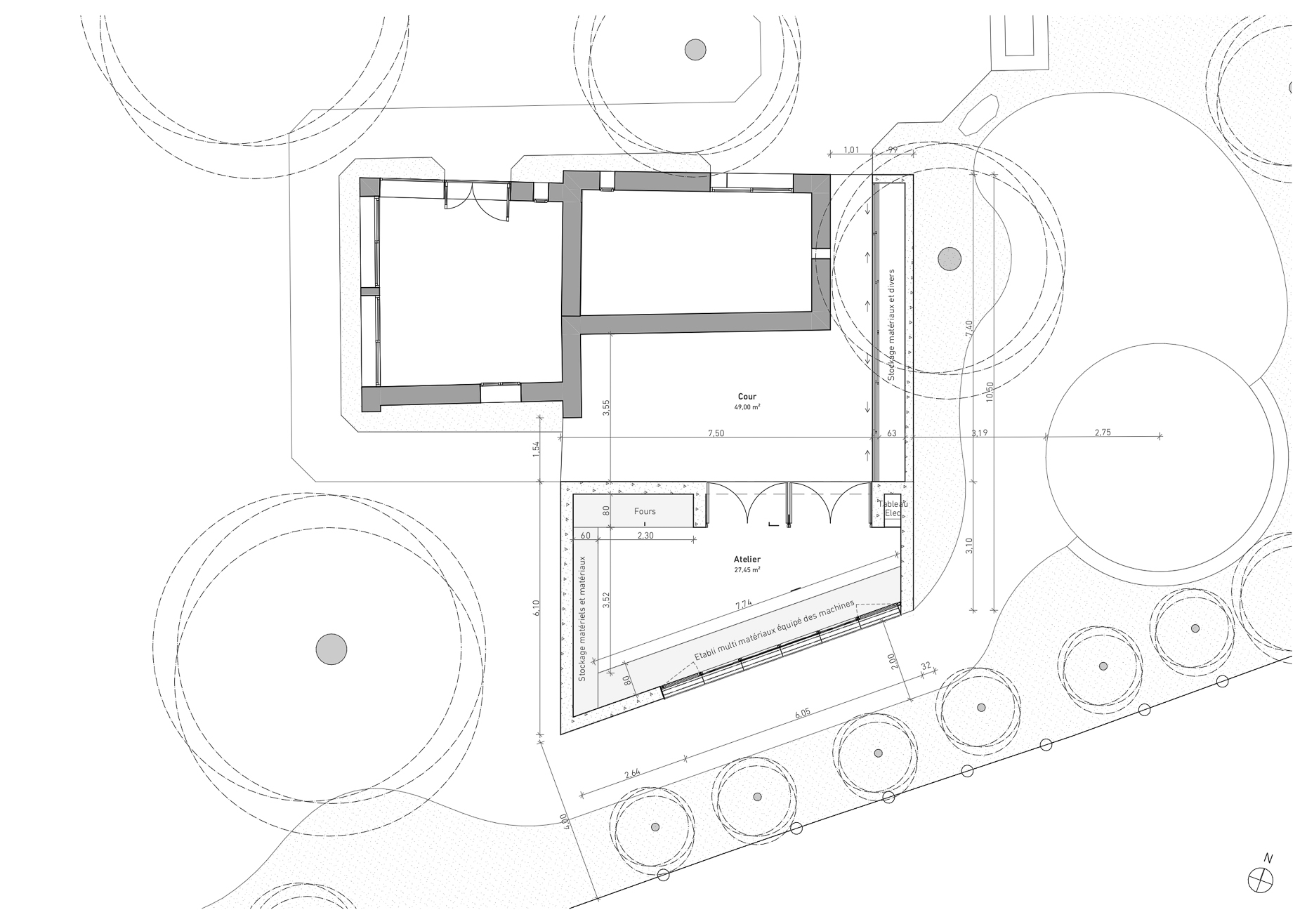
Atelier de menuiserie
Corentin Divol
Loïc Raineval
Fermer
Fermer